WHALE - Two Bedroom Tiny Home, Single storey
Our most popular Whale design, now reimagined for family living.
With additional width and length, this two-bedroom version is designed to give you the freedom of a larger home, while still maintaining the simplicity and efficiency of tiny living. Thoughtful storage, flexible sleeping spaces, and open-plan flow make everyday living feel easy and uncluttered.
At a Glance
Best for: Families, shared living
Layout: 2 bedrooms, 1 bathroom
Future-ready: Option to expand to 4 bedrooms
Customisable: Fully
Transportable: On wheels or fixed to land
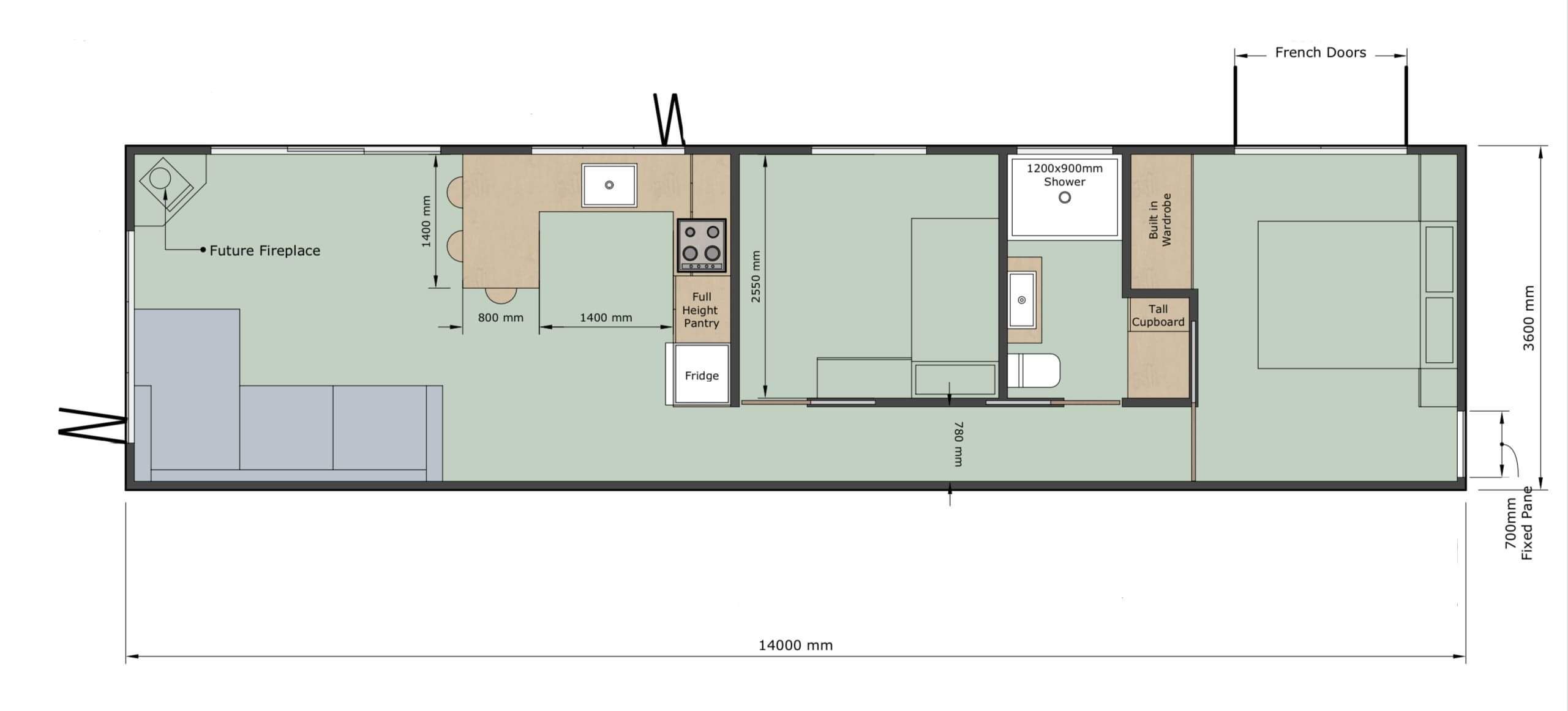
Living & Kitchen
The open-plan kitchen and living area is designed as the heart of the home, bringing everyone together while still allowing space to spread out.
A breakfast bar creates a natural gathering point, while large openings invite light and airflow throughout the space.
The living room seating is designed with generous storage integrated beneath.
For entertaining, the space extends effortlessly outdoors with the option to add our covered deck module.
The kitchen can also be configured in a variety of layouts to suit your lifestyle, whether you prioritise storage, bench space, or appliance integration.
Master Bedroom
The master bedroom offers a calm, private retreat with:
Built-in wardrobe (drawers + hanging space)
Under-bed storage with soft-close drawers
Integrated bedside tables, with the option to extend cabinetry to the ceiling for additional storage
Everything is designed to maximise functionality while maintaining a clean, uncluttered feel.
Secondary Bedroom
The second bedroom is designed with flexibility in mind. It can comfortably accommodate:
A single bed
Bunk beds
Or a double bed
Additional features include under-bed storage, a tallboy for clothing, and space for a desk - making it ideal for children, guests, or a work-from-home setup.
Bathroom & Laundry
Positioned down the hall for privacy, the bathroom includes:
Large 1200 x 900 shower with extractor
Vanity and storage cabinetry
Space for a washing machine (option to stack dryer)
Choice of composting or flushing toilet
A high opening window allows for natural light and ventilation, keeping the space bright and fresh.
Storage That Works for Real Life
Storage is integrated throughout the entire home - from built-in seating to bedroom solutions, ensuring everything has its place. This is a home designed not just to look good, but to function effortlessly for everyday family living.
Designed to Grow With You
One of the most unique features of this model is its ability to evolve.
Choose between a gable or mono-pitch ceiling, with the mono-pitch option designed as a future-proof solution - allowing you to add an additional two-bedroom module later.
This transforms your home into a four-bedroom layout, giving you the flexibility to grow without starting again.
Crafted with Care
Every Raglan Tiny Home is handcrafted in our Raglan workshop by licensed builders, with a huge focus on high-quality, eco-conscious, non toxic materials.
From kitchens to cavity doors, every detail is carefully considered and built in-house, no cookie-cutter solutions, just thoughtful craftsmanship.
Delivery & Flexibility
Delivered NZ-wide, your home arrives ready to live in (excluding soft furnishings).
Designed with transportability in mind, it can remain on wheels or be fixed to your land as a permanent asset.
Make It Your Own
All of our homes are fully customisable. From layout adjustments to materials and finishes, we work closely with you to create a home that reflects your lifestyle - now and into the future.
Thinking About Next Steps
If you’d like to explore layout options, future expansion, or learn more about consent or code of compliance, or the 70sqm granny flat rule, get in touch - we’re here to help guide you through the process.
Enquire now
WHALE - Two Bedroom Tiny Home Includes:
3.6m wide x 14m long
New Zealand wide delivery options
Power
Electrical certification
Gas certification
Caravan plug
Extension lead
Internal switchboard
LED lights (dimmers in bedrooms/lounge)
Double power points with USB
Exterior lights
Exterior details
Cladding - options available
Gas califont
Interior details
NZ natural paint (custom colours)
Marmoleum eco flooring (custom colours)
Windows and doors
All windows and doors are aluminium & double-glazed
All include solid timber jambs and architraves
Kitchen
Kitchen (soft close storage) solid wooden benchtop
Kitchen island
Sink and mixer tap
Gas or electric oven
Range hood
Gas or induction hobs
Fridge/freezer
Window
Bedroom 1
Suitable for up to a king or super king-sized bed
Storage (soft-close) draws and hanging space
Storage under bed
Window and French doors
Bedroom 2
Recommended for single to queen-sized bed or bunks
Storage unit
Storage under bed
Window
Living room
Sliding doors
Extra large windows
Seating, storage & spare bed arrangement
Bathroom
Extractor fan
Cavity slider door
Vanity unit (soft close), basin and mixer tap
Composting toilet
Shower and mixer tap
Window
Foundation
8x adjustable piles (long term foundation)
Fully insulated (R2.2 walls and ceilings, underfloor R2.2 with a thermal break)
Upgrade Extras
Covered deck (transportable on same tiny house trailer)
Off-grid solar Kit
Aircon unit
10sqm Studio
Wood burner




