THE BEACH - One Bedroom, Single Storey Tiny Home
Looking for a standout Bach or a high-performing investment stay?
The Beach is designed to deliver a memorable experience - blending relaxed coastal living with thoughtful luxury. From hidden features to indoor-outdoor flow, every detail is crafted to create a space that feels both indulgent and effortlessly simple.
At a Glance
Best for: Holiday stays, Airbnb/investment, guest accommodation
Layout: Studio + bathroom + outdoor living / kitchen
Standout features: Outdoor bath + rain shower + covered deck
Feel: Relaxed luxury, coastal, private retreat
Customisable: Yes
Transportable: Yes
Design & First Impressions
With its elegant gable roof and Douglas fir cladding, The Beach makes an impression before you even step inside.
The design is clean, modern, and warm - crafted to sit beautifully in coastal or rural settings while offering a sense of quiet luxury.
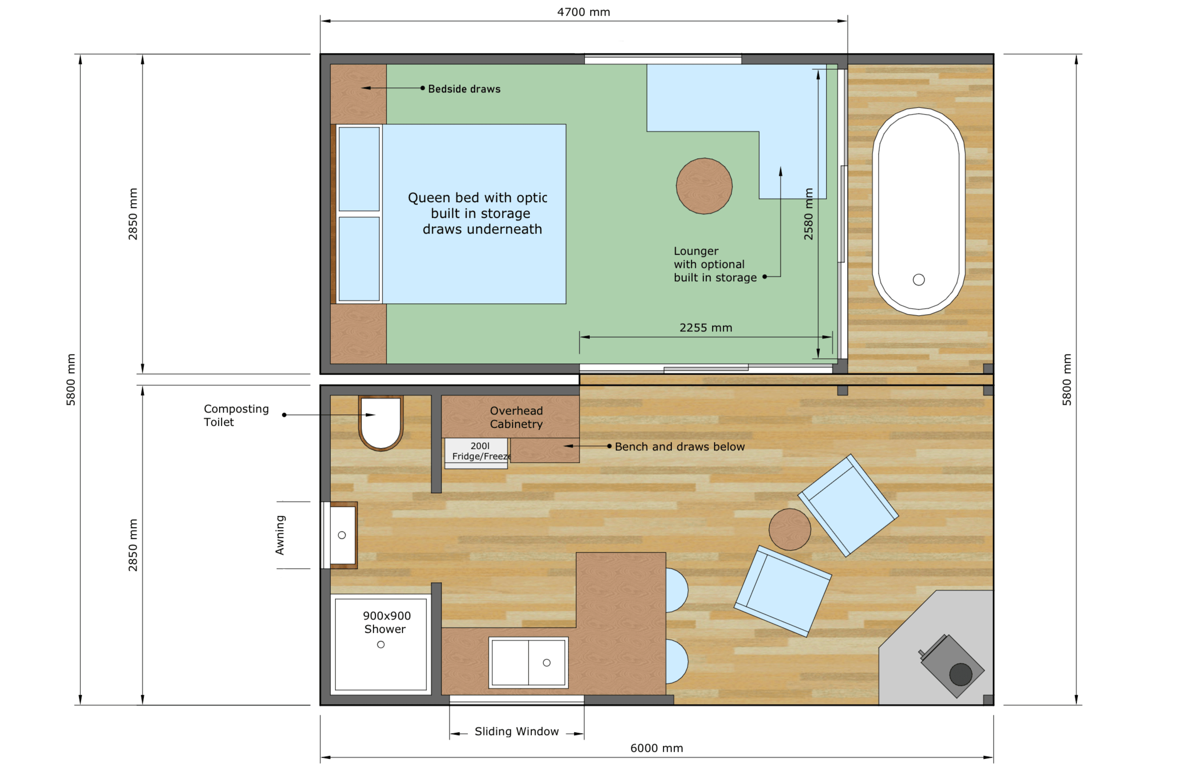
Sleeping Space
Inside, the floating bed is a true feature - creating a sense of openness while adding a subtle design statement. An LED-lit headboard brings a soft ambient glow in the evenings, while the Abodo timber ceiling above adds warmth and texture - making slow mornings with coffee in bed feel like a ritual.
Outdoor Living & Kitchen
Living extends beyond the interior with a covered deck designed for year-round use.
Here you’ll find a fully functional outdoor kitchen, including:
Breakfast bar
Gas cooker
Sink
Under-bench fridge
A roller door allows you to shelter the space from the elements, with the option to fully enclose the deck using outdoor blinds—creating a versatile, all-weather living zone.
Bathroom
Tucked privately behind a sliding barn door, the bathroom includes:
Shower
Vanity
Composting toilet
Simple, clean, and thoughtfully integrated into the overall design.
Signature Experience Features
This is where The Beach truly stands apart.
Outdoor rain shower beneath the gable
Hidden bath built into the deck, revealed when lifted
Designed for stargazing, soaking, and slowing down
These elements transform the home from a place to stay into an experience guests will remember - and return for.
Comfort & Build Quality
More than just a beautiful space, The Beach is built for comfort year-round with:
Full insulation
Double glazing
Every home is handcrafted in our Raglan workshop by licensed builders, using eco-conscious, high-quality materials. From structure to finishing details, everything is made with care - by us, for you.
Delivery & Flexibility
Delivered NZ-wide, The Beach is designed to be transportable while offering the option to fix it to your land as a long-term asset.
Make It Your Own
Like all of our homes, The Beach can be customised to suit your site, style, and intended use - whether that’s a private retreat or a guest-ready investment.
Thinking About Next Steps?
If you’re exploring a guest accommodation build or want to understand how this design could work on your land, get in touch - we’d love to help bring it to life.
Turn key from
$145,000 (incl. gst)
THE BEACH - One Bedroom, Single Storey Tiny Home Includes:
Bedroom: 2.5m wide x 6m long
Covered deck: 2.9m wide x 6m long
New Zealand wide delivery options
Power
Electrical certification
Gas certification
Caravan plug
Extension lead
Internal switchboard
LED dimmable lights (bedroom/living)
LED pendant light
Double power points with USB
Exterior swivel lights
Exterior details
Cladding - Douglas fir, colour steel (other options available)
Gas califont
Interior details
NZ natural paint, VOC Free (custom colours)
Marmoleum eco flooring (custom colours)
Windows and doors
All windows and doors are aluminium & double-glazed
All include solid timber jambs and architraves
Covered deck
Clear light (optional areas)
Roller door
Fijian mahogany decking
Kitchen window
Kitchen
Bathroom (shower, vanity and composting loo)
Kitchen
Kitchen island with breakfast bar (bench top to be chosen)
Sink and mixer tap
Small Fridge
Bedroom
Gable windows, sliding doors.
Floating bed and side tables (suitable for a queen sized bed)
Living room
Seating
Bathroom
Barn slider door
Window
Vanity unit, basin and mixer tap
Composting toilet
Shower and mixer tap
Foundation
12x adjustable piles (long term foundation)
Fully insulated (R2.2 walls and ceilings, underfloor R2.2 with a thermal break)
Upgrade Extras
Off-grid solar Kit
10sqm Studio
Diesel heater
Fire place















































